温哥华市议会一致批准了一项重大的重新分区申请,这将为该市历史上由非营利组织领头的最大规模社会住宅开发项目铺平道路。
周四(5日)晚间,市议会就Purpose Driven Development公司提出重建位于育空街(Yukon St.) 8080号地块的提案,举行公开听证会上做出了这项决定。该幅1.9英亩土地位于西南海旁大道(Southwest Marine Drive)夹育空街东北角,即海旁大道天车站及公共汽车转运总站的东北方向。
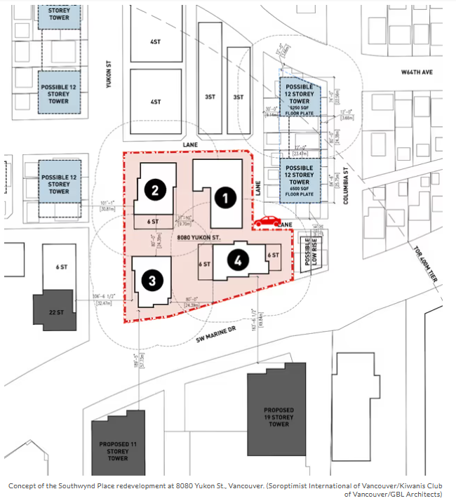
这是Southwynd Place的重建项目,该建筑群建于1976年,是一座低层建筑群,拥有90套社会住房单位。
鉴于现有建筑日渐老化,且各方都希望以经济可行的方式建造更多经济适用房,温哥华扶轮社(Kiwanis Club of Vancouver)和温哥华国际职业妇女福利互助会(Soroptimist International of Vancouver,另称“兰馨交流协会”)这两个非营利组织携手合作,共同推动重建项目。
扶轮社致力于儿童福祉,而国际职业妇女福利互助会则专注于提升妇女和女孩的生活品质。半个多世纪前,这两个组织曾携手合作,共同打造出如今的社会住宅综合建筑。
该专案申请最初于2025年1月提交,并于2025年9月进行了一些小幅修改,导致建筑高度、密度和单位数量略有增加。主设计公司为GBL Architects。
核准的方案计划建造4栋新建物,包括一栋6层楼高的老年公寓和3栋高层住宅大楼——分别为26层、28层和32层,最高可达318呎(约96米)。
项目共包含903套住房单位,其中30%的单位将按照住房收入限制标准以低于市场价的租金出租,其余70%的单位将按市场价出租,以支持整个项目的运营,同时为中等收入的个人和家庭提供合适的住房。此收入比例需根据最终的建设融资协议来决定。
在公开听证会上,Purpose Driven Development的创始人兼行政总裁格雷拉(Carra Guerrera)向市议会表示,该计划“不仅对温哥华,而且对全国而言,都是一个具有里程碑意义的经济适用房计划”。
“这项计划就实现了温哥华市10年可负担住房目标的近10%。”格雷拉告诉市议会,并强调该计划位于公共交通枢纽,主要便利设施都在步行范围内。
【声明】内容及图片转载自“星岛日报”,版权归原作者所有。如有侵权请联系我们,我们将及时处理。




